设计 / 品质 / 生活
Temperature of Love
常言说,有趣的灵魂万里挑一,优质的家居设计亦是如此。
本本以为,家绝对不是死板地套用模板,毕竟户型格局不同、主角需求也不相同。不过,也有一些经验与规律值得我们学习。
今天,本本跟大家分享一套极具色彩美感的设计。
设计师通过主色黑白灰的比例配置,分为一个个小体块投入各个区域之中,看似不是特别出挑的色彩,却打造出一个有趣且极富质感的家。
一句话总结就是:80%白+15%灰+5%黑。
这个万能色彩公式,也值得各位小伙伴借鉴哦!

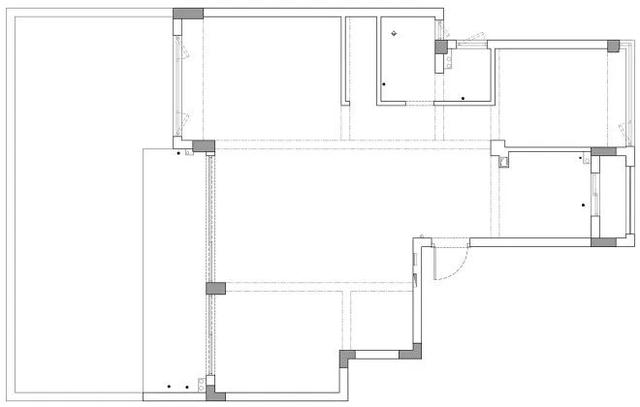
我们先来看看原来的布局:原户型入户门直对内部空间过于直接,客厅面积狭小不够宽敞,卫生间的尺寸极不合理。
整体上,格局没什么大问题,但是细部上都需要重新调整,将居住的舒适度提升上来。

为了解决以上问题,首先,设计师为解决入户门直对室内空间而做了一个具备储物功能的实用型玄关,且在背后设置一个盥洗池干区,恰好解决原来卫生间空间狭小拥挤的问题,一箭双雕。
将客厅的阳台包进室内作为客厅的一部分,将原本较为狭小的客厅变得更为宽敞舒适,同时在很多的拐角处增加弧度造型让空间动线更加优化与柔美。

客厅色彩上,则遵循了开头提到的色彩公式:80%白+15%灰+5%黑。
首先,以80%的白为底色大面积铺开;其次,借电视背景和沙发加入15%的灰;最后,电视和茶几则做到了5%黑的点缀。
以上色彩搭配,形成了一个色彩不张扬、却令人感觉舒服自在的空间配色。
而适当的色调比例运用,让空间通透干净而又极富调性。
原户型客厅面积是比较局限的,活动空间不够大,结合业主意愿,我们选择把阳台包进室内,作为客厅的一部分,而在顶部客厅与阳台之间的横梁,我们用灰色艺术漆刷染,强调顶部空间和客厅呼应,也压制了顶部大面积白的飘忽,打造一个闲散可控的氛围。
有时,一个空间给人独有的感受就来自于这些容易被人忽略的空间细节。
除了装饰之外,顶部空间的其他价值也应当值得我们重视。

阳台与内部空间连贯一体之后客厅变得通透敞亮,面积也足够宽敞可以放的下一个四座组合沙发,亲友到访也有足够的位置接待。
平常生活中,也方便小朋友在这个区域自由玩耍。

我们在沙发后面的空间做了一个长方形的玻璃隔断,既给客厅增加了造型的趣味,也和背后的功能阳台之间互动强化空间的通透感,长虹玻璃的材质隐隐约约让彼此有着独善其身的玩味。

在沙发的另一侧相邻的拐角空间,我们做了一个收纳空间,整个L型空间都是收纳柜,一部分以展览的格口形式呈现,放一些业主的饰品书籍成为一个展示空间,同时加入了格纹元素丰富立面,做一个与展览架的拐角衔接过渡。
颜色上,用黑色把这个小小的转角空间连贯为一个整体,一个功用性很强的休闲小角落就这样生成了。
在顶部还有一个小细节,我们做了一个弧形过渡,在用意上和下部区域呼应整合空间。


在沙发的另一侧是儿童房门,房门是内嵌隐藏式的推拉门,在客厅与卧室的墙体内铺设移门暗轨道,平日里敞开把门推进墙内,也是颜值在线!
同时结合了拱门的元素在墙壁上做了一个曲面的造型,增加趣味与美感的同时,也和顶部空间的曲线呼应。



餐厅处于整个房子的C位,接近入户门的位置,去往的很多空间都要经过餐厅,开放性比较强,所以为了强化餐厅本身的功能,我们用具有聚拢效果的圆形餐桌强化它的主体性,毕竟餐厅所处的位置比较显眼。
除了考虑它本身的功能之外,我们也更加注重它对于整个大空间的影响,又用几把透明餐椅,看着既显得通透又很有美感。



餐厅梁的架构很影响空间效果,设计师利用墙体和柜体对梁的咬合法削弱大梁对餐厅空间的影响。
餐厅的用色上也是以白色为主调,黑色餐桌加上墙面灰色体块,色彩分布有序和谐。

我们在电视背景墙的拐角处做了一个半圆柱曲面造型,电视背景墙的造型一直延伸过来,将面与面之间连贯增加区域之间的互动性,注重空间之间的过渡互动,而非死板地各自为营。

这个角度可以看到我们的入户玄关,解决了入户门直对卫生间门的问题,玄关是以收纳柜体为主很具有实用性,外立面是通体白色没加设其他装饰,是为了保持着一个大空间的清爽,在装饰上采取的适度。
而在玄关背后是次卫的台盆,因为原次卫的面积狭小用着不方便,我们就把它挪了出来,恰好利用玄关的这个位置,做了一个干区,一箭双雕~



主卧床头背景上部分用灰色艺术涂料增加空间的温润,床头柜是以挂壁式嵌在墙体。
相比常见的落地床头柜更为利落清爽,如果房间面积小想显得通透一点可以选择这种方式,当然也方便打扫卫生。

在这个家里不难发现,我们对于顶部空间的作用也是十分看重,在主卧靠窗设计了一个波浪的顶面造型,丰富视觉上的美感,并且在波浪尾处嵌入了一条灯带,增加氛围光感。
床尾靠墙一侧做了一整面储物柜,衣服被子的收纳完全满足。



在柜体的一侧留有梳妆台的空间,梳妆台台面也是与柜体穿插而来延伸的一个面形成的,既满足了功能性又是与物件之间的互动、结构的穿插、颜色的碰撞,不失为一个简约的小设计。
设计师的更多作品,
欢迎进入下方小程序查看哦~

2022避坑指南
限时放送!13份装修小白居家必备的攻略宝典,从收房到选材再到验房,囊括装修过程中的全部问题。
装修资料【01】装修流程图
装修资料【02】收房清单表(2022最新)
装修资料【03】精装房验房表
装修资料【04】毛坯房验房单
装修资料【05】装修设计需求清单(2022最新)
装修资料【06】硬装施工报价参考表
装修资料【07】装修完成的业主预算控制表
装修资料【08】装修公司考察标准
装修资料【09】报价审核明细以及坑点
装修资料【10】二手房收房注意事项
装修资料【11】主材入场时间节点表
装修资料【12】装修宝典材料篇
装修资料【13】装修防坑手册
免费领资料,设计+装修不花冤枉钱!
▼



创业项目群,学习操作 18个小项目,添加 微信:923199819 备注:小项目!
如若转载,请注明出处:https://www.zodoho.com/11557.html
