我们今日介绍坤宁宫
坤宁宫的名字出自《道德经》:“昔之得一者,天得一以清,地得一以宁,神得一以灵,谷得一以盈,万物得一以生,侯王得一而以为天下正。”
坤宁宫匾额
明代认为,皇后的地位跟皇帝相对;皇帝是天,皇后是地;皇帝是“乾”,皇后即为“坤”。在《道德经》中,有“地得一以宁”这一句话,故名“坤宁宫”;同理,还有“天得一以清”,所以皇帝寝宫名“乾清宫”,与坤宁宫相对。
光绪帝大婚典礼图
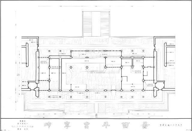
这里规模比乾清宫小一点,面阔9间,进深3间,黄琉璃瓦重檐庑殿顶,与其他两大殿共同坐落在工字形的台基上。
沈阳故宫清宁宫
明代和清初这里确实是皇后的寝宫,在清顺治十三年,这里仿照沈阳故宫清宁宫的形制,进行了一定的整改。
坤宁宫窗户
将原有的菱花隔扇窗均改为直棂吊搭式窗,中间的正门改为双扇木板门,在西侧暖阁增添了大坑和煮肉大锅,作为萨满教的祭祀场所。
坤宁宫平面图
雍正之后坤宁宫不住人了,明间和西部、南、北三面环形大炕,是重修坤宁宫是按照东北满族的习惯修建的,清宫在这里祭神,每天有朝祭、夕祭,平时由司祝、司香、司俎等人祭祀,大祭的时候皇帝皇后亲自参加
坤宁宫萨满教祭祀场所
说到祭祀,这所祭拜的神包括释迦摩尼,关云长,蒙古神,画像神等,多至十五六个。祭祀时要进糕,进酒,杀猪,唱诵神歌,并有三弦,琵琶,祷鼓,拍板等伴奏。平时每天要宰猪四口,春秋大祭时宰三十九口。每年用七百多石红黏谷做糕酒,而且在宫内杀猪、煮肉,做糕,就地吃肉。
坤宁宫洞房
在东侧暖阁,是皇帝大婚用的婚房,康熙,同治和光绪以及宣统在辛亥革命后大婚的时候都在这里住过。
婚房侧面
皇帝皇后大婚,会在这里住三天后,皇后就会迁居到东西六宫之一居住,整堵墙饰以红漆,悬双“喜”字宫灯,出入是鎏金页的大红门上也有金色双“喜”字。
大红地金色双“喜”木影壁
洞房外东侧通路,耸立一座大红地金色双“喜”木影壁,取帝后合卺开门见喜之意。
坤宁宫喜床
洞房西北角为龙凤喜床,床上挂着五彩纱百子幔,上绣百子图,喜床上铺红缎龙凤炕褥。
坤宁门
坤宁宫后面是坤宁门,门内周围的廊庑是太医值房、药房和太监值房。后面联通的便是御花园,明朝嘉靖将坤宁门改到这里。
创业项目群,学习操作 18个小项目,添加 微信:923199819 备注:小项目!
如若转载,请注明出处:https://www.zodoho.com/43932.html
