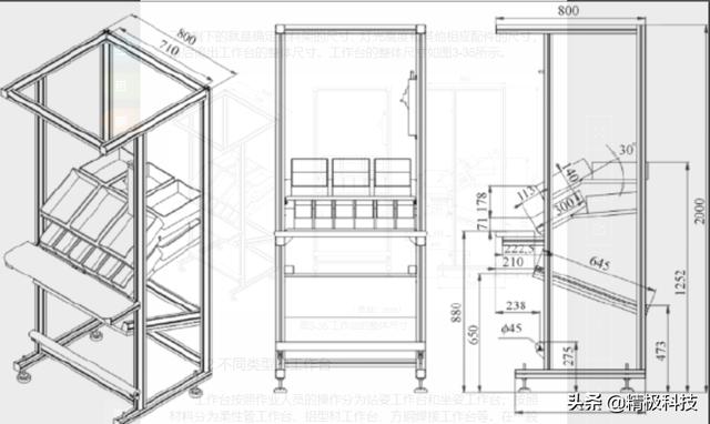
精益单元生产线工作台的高度和台面尺寸基本确定后,工作台的尺寸也就确定了,剩下的就是确定物料架的尺寸,精益单元生产线工作台的尺寸也就确定了,剩下的就是确定物料架的尺寸、灯光高度和其他相应配件的尺寸,最后得出工作台的整体尺寸。工作台的整体尺寸如下图所示。
精益单元生产线工作台的整体尺寸
精益单元生产线工作台的台面尺寸设计要求在兼顾作业人员操作方便性的同时,能够足够摆放操作过程中所需要的材料、工具、设备或者其他仪器等。精益单元生产线工作台的宽度越小越好,这样可以缩短作业人员的操作距离,材料、工具和设备的立体摆放可以减少工作台面的需求面积。精益单元生产线中通用的工作台的台面尺寸如下所示(可结合自己产品的生产实际情况使用特殊尺寸)。
选择1:长900mm,宽700mm。
选择2:长800mm,宽600mm。
选择3:长700mm,宽600mm。
创业项目群,学习操作 18个小项目,添加 微信:923199819 备注:小项目!
本文内容由互联网用户自发贡献,该文观点仅代表作者本人。本站仅提供信息存储空间服务,不拥有所有权,不承担相关法律责任。如发现本站有涉嫌抄袭侵权/违法违规的内容, 请发送邮件至 zoodoho@qq.com举报,一经查实,本站将立刻删除。
如若转载,请注明出处:https://www.zodoho.com/13988.html
如若转载,请注明出处:https://www.zodoho.com/13988.html
